W dniu 10 października 2025 r. w siedzibie Świętokrzyskiej OIA RP miało miejsce szkolenie, którego tematem było projektowanie schronów i miejsc doraźnego schronienia (MDS).
Szkolenie składało się z dwóch bloków tematycznych:
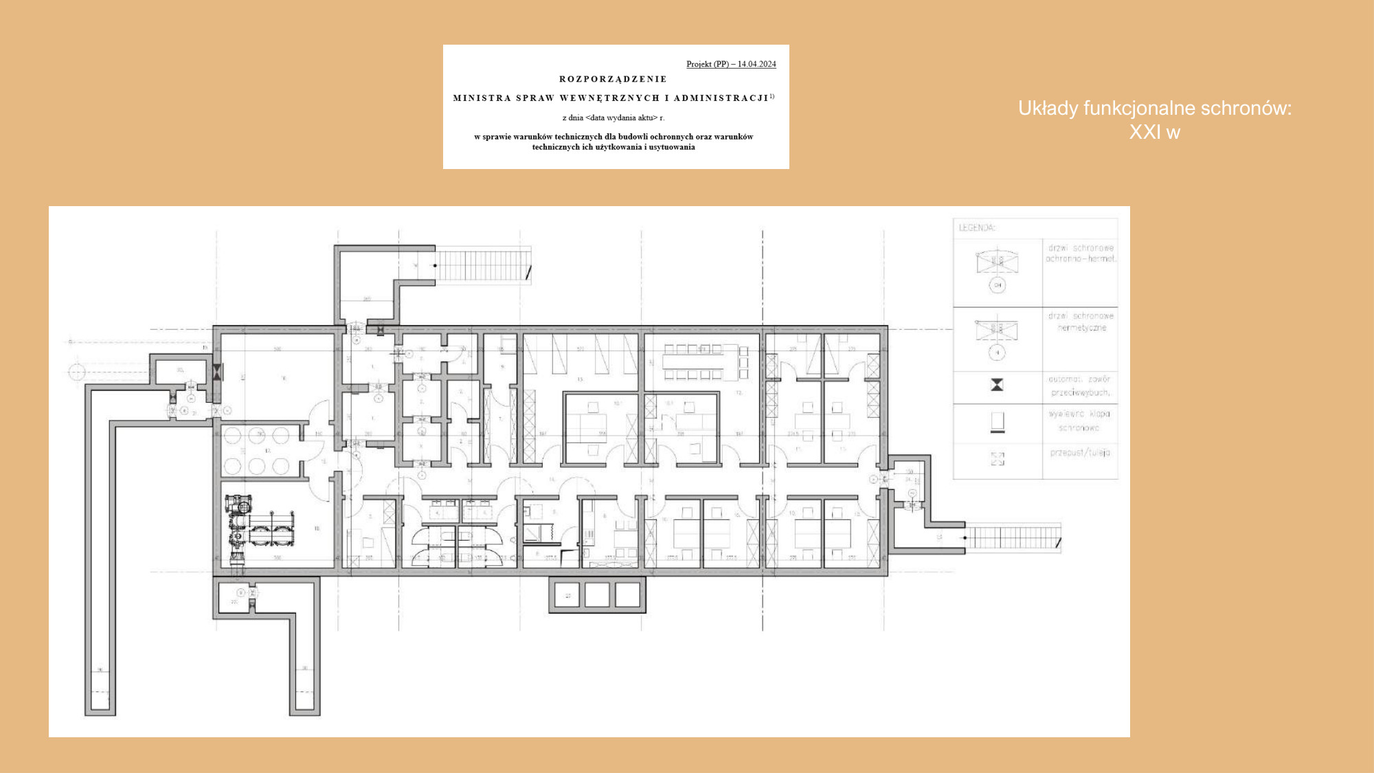
- Część 1: Budowle ochronne – podstawy → dokument PDF → grafiki (poniżej)
- Część 2: Miejsca Doraźnego Schronienia (MDS) → dokument PDF → grafiki (poniżej)
Szkolenie poprowadził kol. mgr inż. arch. Michał Pietrzyk, rzeczoznawca budowlany, który zajmuje się m.in. budownictwem przemysłowym i budownictwem ochronnym.
Poniżej przedstawiamy materiał ze szkolenia. Klikając na grafice w będą dostępne (w formie pokazu slajdów) większym rozmiarze.
–





























































